ELEVAR
E.LE.VAR
(ê.le.var)
(ê.le.var)
1. Mover para uma posição mais alta; alçar, erguer.
2. Aumentar ou intensificar algo.
3. Promover a um nível ou condição superior.
CONCEITO:
A casa será projetada para se destacar em um ambiente urbano, elevando-se do solo por pilotis para criar um espaço habitacional único e contemporâneo. Os pilotis não apenas proporcionarão um aspecto estético interessante, mas também permitirão a criação de espaços versáteis e funcionais debaixo da casa, como estacionamento ou áreas de lazer.
A casa será projetada para se destacar em um ambiente urbano, elevando-se do solo por pilotis para criar um espaço habitacional único e contemporâneo. Os pilotis não apenas proporcionarão um aspecto estético interessante, mas também permitirão a criação de espaços versáteis e funcionais debaixo da casa, como estacionamento ou áreas de lazer.
PARTIDO:
A elevação da casa oferecerá uma camada adicional de privacidade e segurança, afastando-a do nível da rua e proporcionando uma sensação de isolamento em relação
ao ambiente urbano. Os pilotis serão projetados para garantir a acessibilidade à casa, proporcionando uma entrada livre de obstáculos e facilitando o acesso das pessoas. A elevação da casa por pilotis permitirá o aproveitamento inteligente do espaço embaixo da estrutura, que poderá ser utilizado para estacionamento, áreas de armazenamento, jardins suspensos ou até mesmo espaços de convívio ao ar livre. A casa apresentará um design moderno e elegante, com linhas limpas e materiais contemporâneos, destacando-se no contexto urbano.
A elevação da casa oferecerá uma camada adicional de privacidade e segurança, afastando-a do nível da rua e proporcionando uma sensação de isolamento em relação
ao ambiente urbano. Os pilotis serão projetados para garantir a acessibilidade à casa, proporcionando uma entrada livre de obstáculos e facilitando o acesso das pessoas. A elevação da casa por pilotis permitirá o aproveitamento inteligente do espaço embaixo da estrutura, que poderá ser utilizado para estacionamento, áreas de armazenamento, jardins suspensos ou até mesmo espaços de convívio ao ar livre. A casa apresentará um design moderno e elegante, com linhas limpas e materiais contemporâneos, destacando-se no contexto urbano.
O PROJETO
INFORMAÇÕES GERAIS
Uso: Habitação residencial.
Localização: Rua Emma Pschera Lass, Curitiba, Paraná.
Cliente: Universidade Tuiuti do Paraná.
Ano: 2024.
Localização: Rua Emma Pschera Lass, Curitiba, Paraná.
Cliente: Universidade Tuiuti do Paraná.
Ano: 2024.
INFORMAÇÕES TÉCNICAS
Área do lote: 319,50m²
Área construída: 172,24m²
Zoneamento: Setor Estrutural Norte (ZR1)
Área construída: 172,24m²
Zoneamento: Setor Estrutural Norte (ZR1)
PLANTA TÉRREO
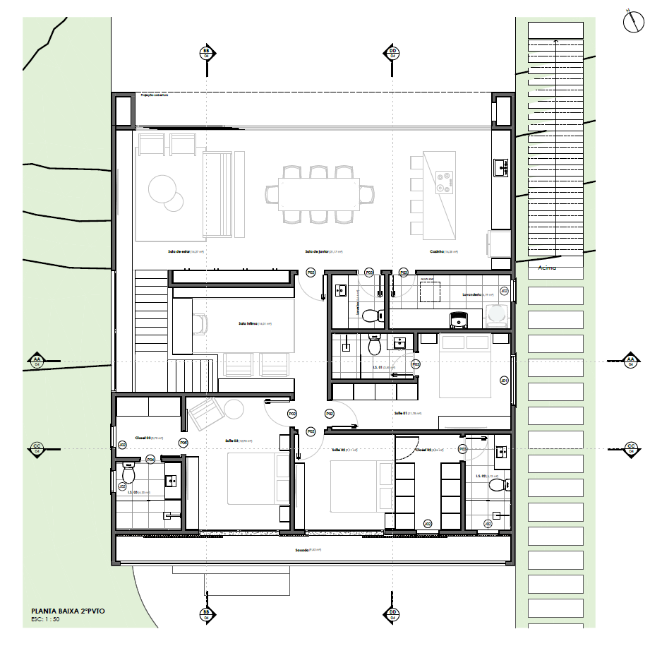
PLANTA 2°PAVIMENTO